it

Commercial Premises / Showrooms for rent in Trescore Balneario

Trescore Balneario - Commercial Premises / Showrooms for rent
4,000 € / month
Primal Features
1150 m²
Surface
5
Locals
4
Bathrooms
Description
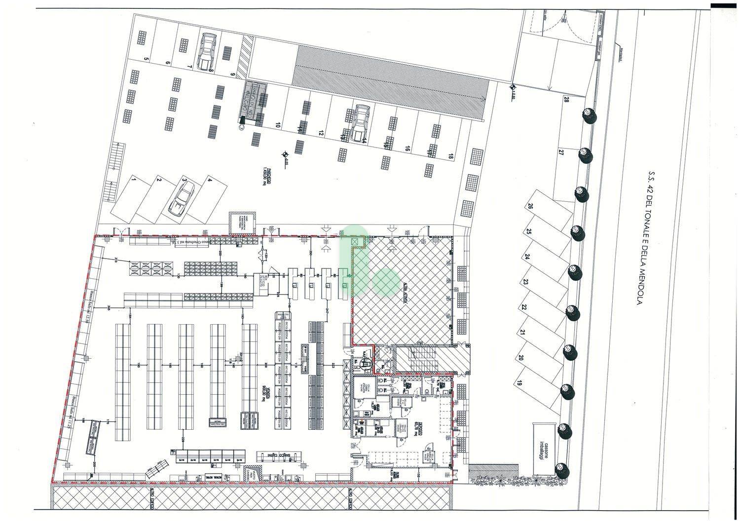
Located in Ad Entratico, strategically positioned opposite the SS42 del Tonale state road, this 1,150 m² commercial property represents an unmissable opportunity for your business.

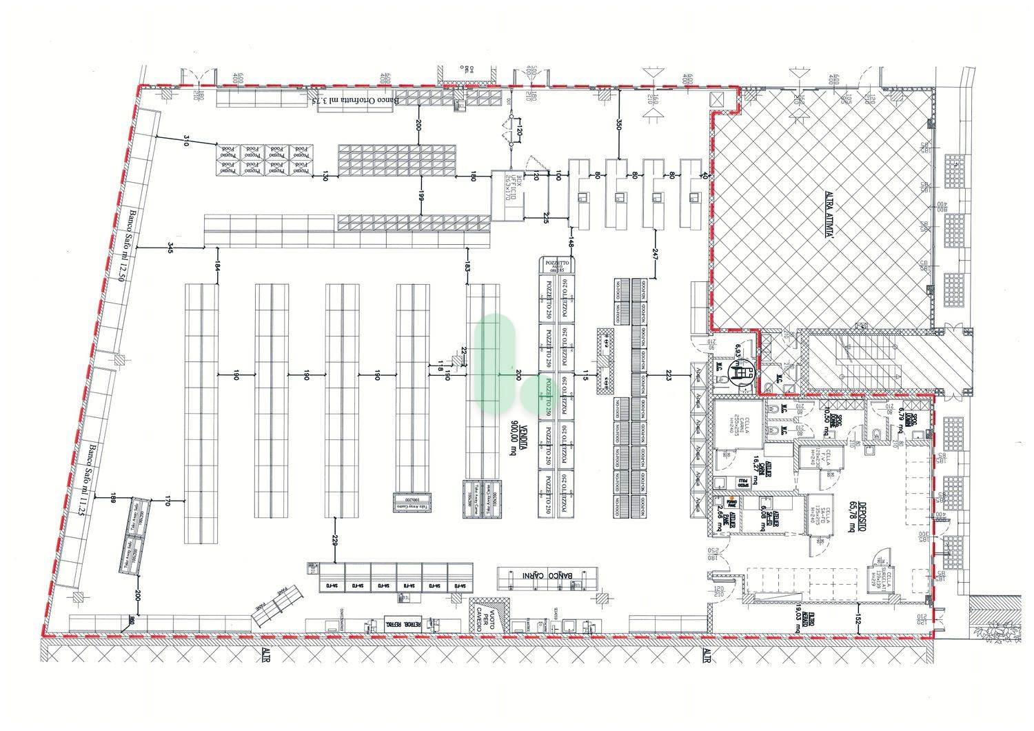
A former supermarket, the property is located in a lively shopping center with two other units, guaranteeing a constant flow of visitors.

With 900 m² of commercial space and 150 m² of ancillary space, the property is equipped with lighting, heating, air conditioning, and alarm systems, ensuring comfort and security.

The four large windows offer good visibility, while the parking spaces in front and underground facilitate customer access.

On the ground floor, you will find five rooms and four bathrooms, perfect for adapting to various commercial needs. Complete with a warehouse and a smoke extraction system, this space is ready to accommodate your business immediately.

Don't miss the opportunity to establish your presence in such a privileged location!

AVAILABLE IMMEDIATELY!
Characteristics
Code:
31808511
City:
Trescore Balneario
Category:
Commercial Premises / Showrooms
Locals:
5
Bathrooms:
4
Sqm:
1150
Walkable sqm:
1050
Car places:
100
Floor:
Ground floor
Energetic class:
D
38.94
Property Conditions:
Good
Heating:
Independent
Accessories
Air conditioning
Floorplans
Information request
QR Code
QR Code
Cookie preference